
TECHNICAL DRAWINGS
Photo by Luca Laurence @ unsplash.com
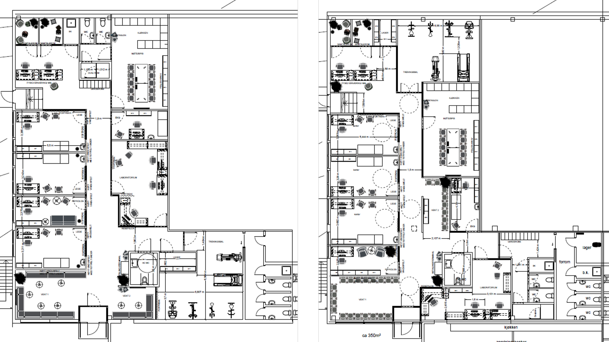
TEKNISK TEGNING GIR DEG KONKRETE FORSLAG PÅ HVORDAN NOE SKAL DESIGNES OG BYGGES. TYPISKE TEKNISKE TEGNINGER ER PLANLØSNING, HIMLINGSPLAN, BELYSNINGSPLAN, OPPRISS ELLER SNITT AV ROMLØSNING ELLER ELEMENTENE SOM SKAL BYGGES. VI VISER HER NOEN EKSEMPLER PÅ HVORDAN TEKNISKE TEGNINGER OG MODELLER KAN SE UT.
TECHNICAL DRAWINGS PROVIDE YOU WITH CONCRETE PROPOSALS ON HOW SOMETHING SHOULD BE DESIGNED AND BUILT. TYPICAL TECHNICAL DRAWINGS INCLUDE FLOOR PLANS, CEILING PLANS, LIGHTING PLANS, ELEVATIONS, OR SECTIONS OF THE ROOM LAYOUT OR THE ELEMENTS TO BE CONSTRUCTED. HERE, WE SHOW SOME EXAMPLES OF WHAT TECHNICAL DRAWINGS AND MODELS CAN LOOK LIKE.